|
QB2双口排气阀原理作用: QB2双口排气阀当管内开始注水时,塞头停留在开启位置,进行大量排气,当空气排完时,阀内积水,QB2双口排气阀浮球被浮起,传动塞头至关闭位置,停止大量排气,当管内水正常输送时,如有小量空气聚集在阀内到相当程度,阀内水位下降,浮球随之下降,此时空气由小孔排出,当抽水机停止,管内水流空时或遇管内产生负压时,此时塞头迅速开启,吸入空气,确保管线完全。 QB2双口排气阀性能特点: ①能够排除管道中的气体,减少阻力节约能源; ②当管道负压时,本产品能快速自动吸入空气防止管道破裂; ③排气能力是普通双孔排气阀多倍; ④浮球托架为不锈钢,使用寿命长,安全可靠。? 每小时排气量
QB2双口排气阀技术参数:
QB2双口排气阀部件材质:
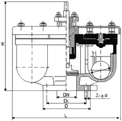
QB2双口排气阀外形尺寸:
|
-
启闭方便迅速、省力、流体阻力小,可以经常操作。
-
排气阀结构简单,安装操作方便。
-
能够排除管道中的气体,减少阻力节约能源。
-
排气能力是普通双孔排气阀多倍。
-
浮球托架为不锈钢,使用寿命长,安全可靠。
-
根据用户提供的流量、压力提供选型规格书及控制方案图。


