|
Z41X 明杆软密封闸阀是一款手动阀,密封面可依靠介质产生的压力而自行密封。即通过介质压力将闸板密封面压向宁一侧的阀座密封面,从而使两个密封面紧密结合确保密封性能良好,这也可称之为自密封。相对于传统闸阀的强制密封方式更加方便,工作效率也能大大提高。
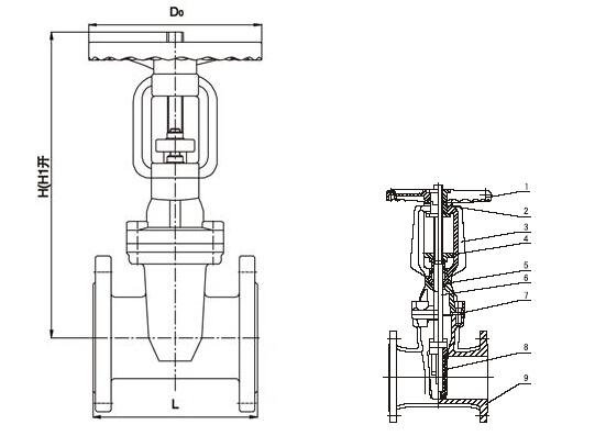
一、Z41X 明杆软密封闸阀工作原理: Z41X 明杆软密封闸阀的启闭件为闸板,闸板有两个密封面,可依据阀门的参数而形成不同的模式闸板阀。明杆闸阀的闸板可做成一个整体来使用,称为刚性闸板;或是改变为可产生微量变形的闸板,改善工艺性从而弥补在加工过程中产生的偏差,这种闸板叫做弹性闸板。 Z41X 明杆软密封闸阀是通过转动手轮,手轮与阀杆的螺纹进行进、退工作的情况下,提高或降低与阀杆连接的闸板,从而完成启闭工作。这就是将旋转运动转变为直线运动,从力学角度来说明就是将操作转矩变换为操作推力。
二、Z41X 明杆软密封闸阀技术参数: 压力等级:1.0MPa、1.6MPa 阀体耐压:1.5MPa、2.4MPa 密封试验:1.1MPa、1.76MPa 工作温度:0~80℃ 适用介质:水、气等 三、Z41X 明杆软密封闸阀安装事项: 1.明杆闸阀的手轮、手柄以及传动结构是不允许做起吊使用,并且严禁碰撞,避免破损; 2.明杆闸阀应该垂直安装,就是将阀杆安置在垂直位置,手轮放在顶端; 3.带有旁通阀的明杆闸阀在使用前应该先将旁通阀打开; 4.带有传动机构的闸阀要按照指定的安装说明书进行安置; 5.如果经常使用明杆闸阀,最少每个月就要进行清洗、润滑一次。 四、Z41X 明杆软密封闸阀型号主要参数: ![]() 五、Z41X 明杆软密封闸阀图片主要尺寸: ![]() 六、Z41X 明杆软密封闸阀结构图: ![]() |
-
球墨铸铁精密铸造工艺而成
-
具有体积小,重量轻,性能可靠,配套简单,流通能力大。
-
比普通铸件重量减轻,强度增加,不易断裂,不易出现漏水现象
-
三元乙丙材质的橡胶经过平板硫化技术整体包覆,弹性好不易脱落
-
采用三道O型密封圈密封设计,减少开和关时的摩擦阻力
-
整体烤漆,能有效防止锈蚀且只要更换密封阀座密封材料,就可使用于不同介质。




